10 van de 15 schoolomgevingen zijn aangepakt

10 van de 15 schoolomgevingen zijn aangepakt

Overmorgen begint het nieuwe schooljaar en in de aanloop daarvan is nog de verkeerssituatie in een aantal schoolomgevingen aangepakt. Het gaat om een uitvoerig plan dat de huidige meerderheid over verschillende jaren uitwerkt en waarbij met inzet van technologieën en van inspraak een omgeving tot stand komt die kinderen en ouders aanzet om met de fiets of te voet naar school te komen. Daarbij kunnen ze ook gebriuik maken van de fietsrouteplanner, een unieke app die voor iedereen de kortste en vooral meest veilige fietsverbinding van thuis naar school, werk of hobbyplaats aangeeft. "Die planner wordt permanent geüpdatet telkens er een knelpunt weggewerkt wordt of wegverbetering zijn aangebracht.  Tot nu toe zijn 10 schoolomgevingen aangepakt, volgend jaar staan er nog 5 op het programma", legt schepen van Mobiliteit en Openbare Werken Lode Schops (GOED) uit, die een overzicht geeft van de realisaties tot nu toe.

1. Aan De Leerplaneet in Zolder-centrum zitten de aanpassingen in de laatste fase. Eerder zijn daar al fietszones in de omliggende straten ingevoerd en de knip Dekenstraat. De ouders parkeren op parking Beekbeemdenhof die nog uitgebreid wordt. Het kruispunt van de parking met de Ringlaan is veiliger gemaakt met een oversteekplaats met ledstrips, verkeerslichten die zich aan het verkeer aanpassen, aftelklokje voor het oversteken, bredere opstelplaats op het voetpad, ... Er is een nieuwe bushalte aan de school, Kuipersstraat en Beenhouwersstraat zijn tijdens schoolbegin en -einde  een schoolstraat. En er geldt in de buurt een parkeerverbod om ongewenst parkeren te vermijden.  

2. Ook De Springplank in Eversel zit in de laatste afwerkingsfase. Daar staan al langer slagbomen om van de Everselkiezel bij schoolbegin en -einde schoolstraat te maken. De ouders parkeren aan Sint-Baaf. Ook daar geldt parkeerverbod in de omliggende straten. De Sint-Jacobusstraat, met de kleuteringang, wordt ingericht als fietsstraat. De fietspaden in de Everselkiezel zijn doorgetrokken tot aan de school, er komt in september ook nog een voetpad tot  St. Baaf. De bus zal voortaan stoppen buiten de schoolstraat. 

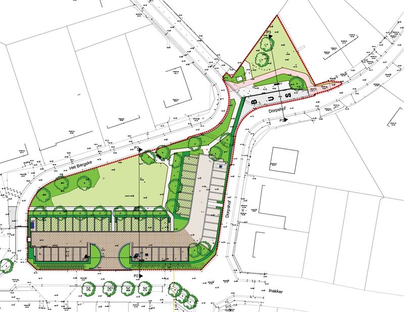
3. Voor de Daltonschool in Zolder-centrum is het nodig om het hele plein aan Het Bergske te herinrichten, dat gebeurt volgend voorjaar. (foto) Er komt een knip om een schoolstraat in te richten en het doorgaand verkeer te scheiden. De omliggende straten werden fietsstraten en er zijn een kleine  50 parkings voorzien in het nieuwe ontwerp. Het ontwerp integreert een kleinschalig groen park voor de bewoners en schoolomgeving. En er komt een nieuwe bushaven verder van de school.

4. Aan 't Molenholleke in Zolder-centrum is een aantal quick wins uitgevoerd: een verhoogd plateau in de Molenstraat om de snelheid aan de fietsingang te verlagen en fietsstraten in de buurt.  Volgend jaar komt er een totale verkeersanalyse voor de schoolomgeving. 

5. Aan De Winning in Zolder zijn een versmalling en een nieuwe voetgangersoversteek gerealiseerd, samen met een dynamische zone 30. Op termijn wordt bekeken of de M. Scheperslaan vrijliggende fietspaden kan krigen.

6. Voor het wijkschooltje De Toverfluit in Ubbersel waren er niet veel verkeersproblemen, toch is een nieuwe voetgangersoversteek geschilderd. Ook wordt gezocht naar maatregelen om de snelheid in de Obbeekstraat, aan de achterzijde van de school, af te remmen.

7. Voor de schoolomgeving van Sint-Jan Berchmans Viversel is na proefopstellingen gekozen voor een permanente éénrichting in de St. Quirinusstraat om zo weinig mogelijk verkeer in de schoolomgeving aan te trekken. Ouders parkeren  aan de Vierseleer van waar de kinderen via een wandelpool naar/van de school worden gebracht. Er komen ook een nieuwe bushaven in de Westlaan en vrijliggende fiets- en voetpaden met veilige oversteekplaatsen aan de ingang.

8. Aan De Luchtballon in Heusden zijn paaltjes geplaatst om te vermijden dat de ouders de speelplaats oprijden en wordt het langzaam verkeer fysiek gescheiden van het gemotoriseerd verkeer (voetgangerszone). Er is een nieuwe bushaven voorzien en er werd een zebrapad aangelegd. 

9. Bij de Vrije Basisschool Bolderberg is gebleken dat het omdraaien van de vertrekorde van fietsers ten opzichte van de auto’s de veiligheid verbetert. Er is daar ondertussen een schoolstraat ingevoerd en de parking is verbeterd. Verder zijn paaltjes gezet, een fietsoversteekplaats gelegd aan de Zandstraat en is het zebrapad aangepast.


10. Voor omgeving de Vrije Basisschool Boekt komt er een analyse samen met het plan voor de heropwaardering van de dorpskern met aandacht voor trage wegen. Er komt een knip in de dorpskern en éénrichtingsverkeer in Reitveld. Zo worden fietsers en voetgangers gescheiden van het gemotoriseerd verkeer.

En omdat ook scholen en fietsers de Velodroom zullen gebruiken, krijgt de omgeving (P69 en kerkstraat) brede fietspaden en veilige busparkings.78423